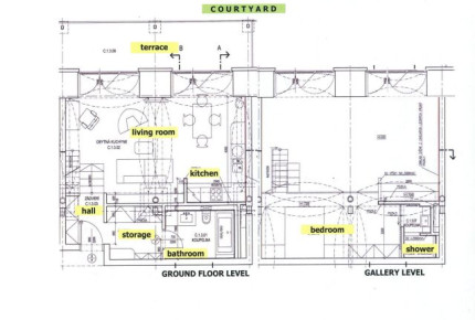
Luxusní, plně zařízený jednoložnicový loft s velkou terasou na Praze 8, v přízemí nového projektu Cornlofts. 73 m2: hala, velký obývací pokoj s plně vybaveným kuchyňským koutem a se vstupem na terasu (16 m2), prádelna, koupelna (vana, WC). Z obývacího pokoje vedou schody do patra, kde se nachází ložnice a koupelna se sprchou. Dobrá dopravní dostupnost a občanská vybavenost. Možnost parkování, podzemní garáže. Energetický štítek G.
Realitní makléř At Home
Luxusní, plně zařízený jednoložnicový loft s terasou, Karlín
We use cookies to provide you with the best possible experience. They also allow us to analyze user behavior in order to constantly improve the website for you.