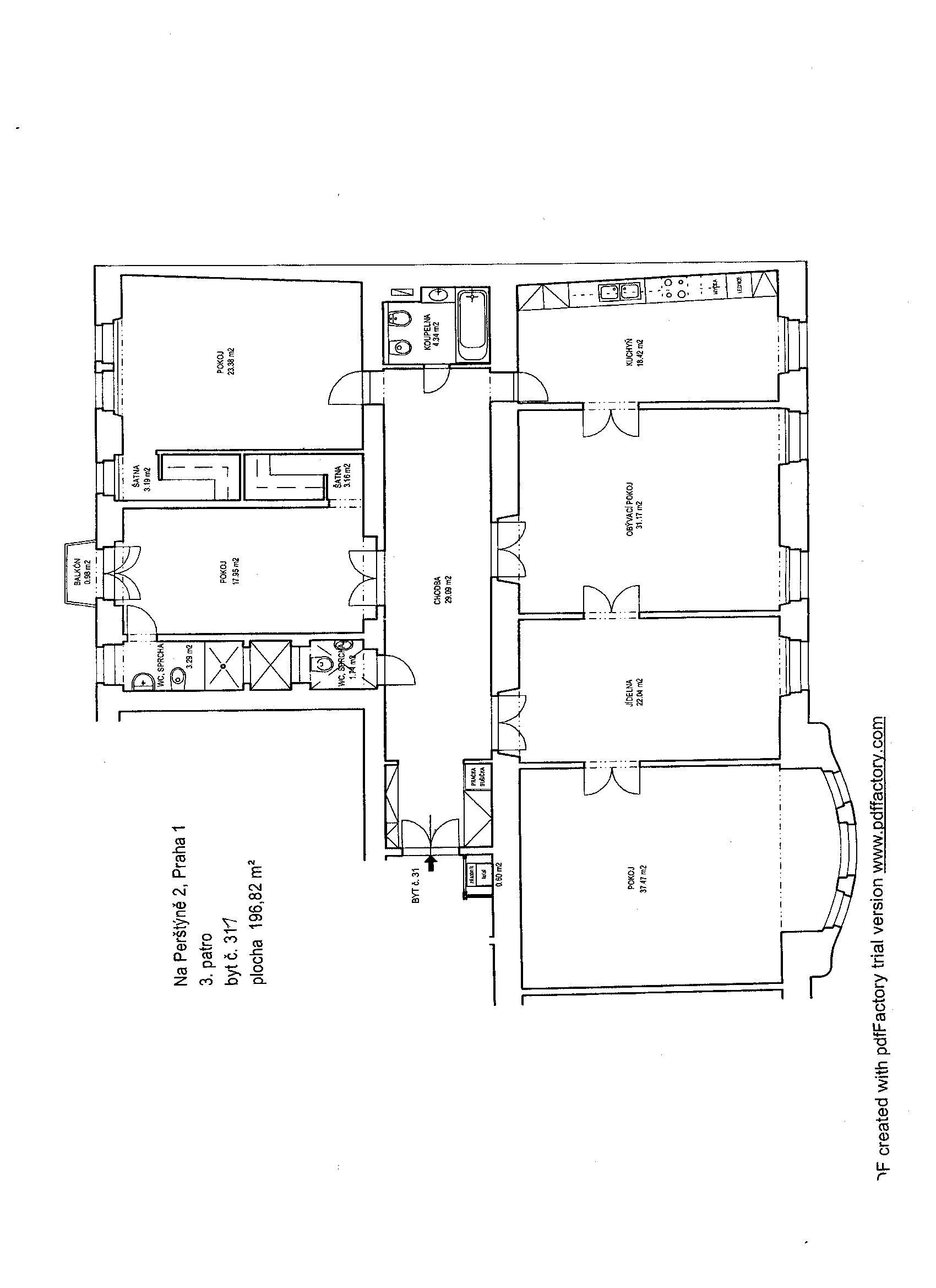
Prostorný reprezentativní byt 5+1 přímo v centru města v ulici Na Perštýně, Praha 1 - Staré Město. Třetí patro rohového činžovního domu s výtahem. 197m2: obývací pokoj, 4 další místnosti, samostatně kuchyně. 2x koupelna + 1 WC samostatně. Malý balkónek. Výborná poloha v centru města na hranici Starého a Nového Města, pár kroků od obchodního centra Quadrio a metra B - Národní třída. K dispozici od července 2026. Nájemné je ve výši 96.000,-Kč/měsíc, poplatky jsou ve výši 1.000,-Kč/osoba/měsíc, převod energií na nájemce.
We use cookies to provide you with the best possible experience. They also allow us to analyze user behavior in order to constantly improve the website for you.