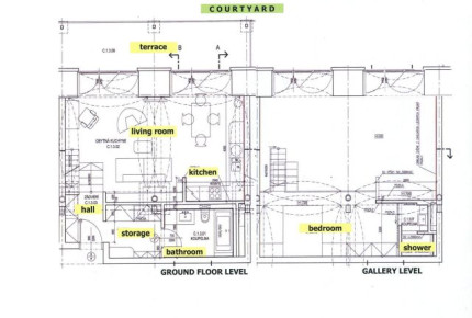
Luxury, fully furnished 1-bedroom loft with terrace in Prague 8. Situated on the ground floor in a new residental project "CornLofts". Total floor area: 73 sq m + 16 sq m terrace. On the lower floor: entrance hall with storage space, spacious living room with fully-equipped kitchen corner and access to the terrace, bathroom with tub+toilet. On the upper floor: bedroom, bathroom with shower corner. Good access to the city center + all amenities. Lovely, nice location. Underground garage. Energy efficiency G.
Realtiný maklér At Home
Fully furnished 1-bedroom loft with terrace, Šaldova, Karlín
We use cookies to provide you with the best possible experience. They also allow us to analyze user behavior in order to constantly improve the website for you.