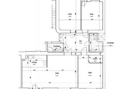
Unfurnished, luxury 3-bedroom apartment on the 3rd floor of a renovated Art Nouveau house from 1910 with a new elevator. The apartment is unfurnished with the possibility of further furnishing by agreement and after increasing the rent price (72,000 CZK/month). 140 m2: spacious living room with dining room, fully equipped kitchen (separated by sliding doors), 3 bedrooms, 2 bathrooms (one with a bathtub, the other with a shower), laundry room, small balcony, dressing rooms and entrance hall. The apartment has high-speed internet and the possibility of receiving satellite and cable TV. The entire house has undergone a complete reconstruction while maintaining the original elegant character of the house. New electricity, water and gas distribution. High ceilings, renovated wooden doors and paneling, quality solid parquet floors. The house has a new elevator and there is also a parking space in the underground garage for 5,000 CZK/month. The courtyard of the house is designed as a quiet garden, which can be used by all residents of the house. The house is just a few minutes walk from the Jiřího z Poděbrad metro station (line A), tram and bus stops and is right next to the popular Riegrovy sady park. The center can be reached by walking through the park in about ten minutes. Nice, quiet living at a good address right next to the park, with all civic amenities nearby. Deposits for services and fees 8,000 CZK per month. The apartment will be available in the second half of September.
We use cookies to provide you with the best possible experience. They also allow us to analyze user behavior in order to constantly improve the website for you.