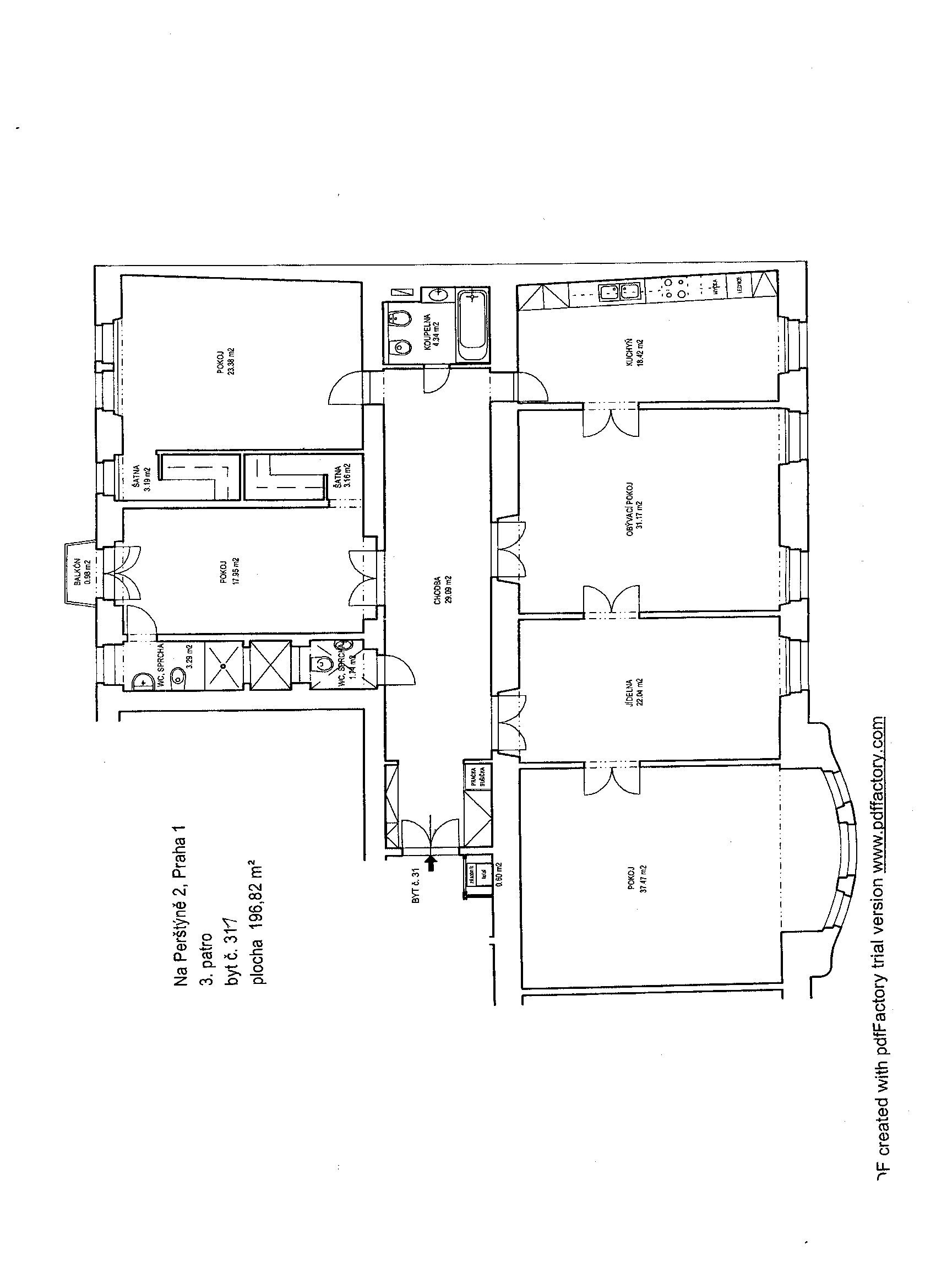
Spacious representative 5+1 apartment right in the city center on Na Perštýně street, Prague 1 - Old Town. Third floor of a corner apartment building with an elevator. 197m2: living room, 4 other rooms, separate kitchen. 2x bathroom + 1 separate toilet. Small balcony. Excellent location in the city center on the border of the Old and New Towns, a few steps from the Quadrio shopping center and metro B - Národní třída. Available from July 2026. Rent is 96,000 CZK/month, fees are 1,000 CZK/person/month, energy transfer to the tenant.
Sütiket használunk, hogy a lehető legjobb felhasználói élményt nyújtsuk Önnek. Emellett lehetővé teszik számunkra a felhasználói viselkedés elemzését is, hogy folyamatosan javíthassuk a webhelyet az Ön számára.